Dallas ADU Pro creates smart, efficient ADU designs that meet Dallas codes and elevate your living space.

Gallery Posts

info@delosweb.com Building Smart ADU Solutions
breadcumb breadcumb

Adu Design Planning Service

  • Home
  • Adu Design Planning Details
Modern ADU design and planning Dallas backyard home exterior

Custom ADU Design & Planning

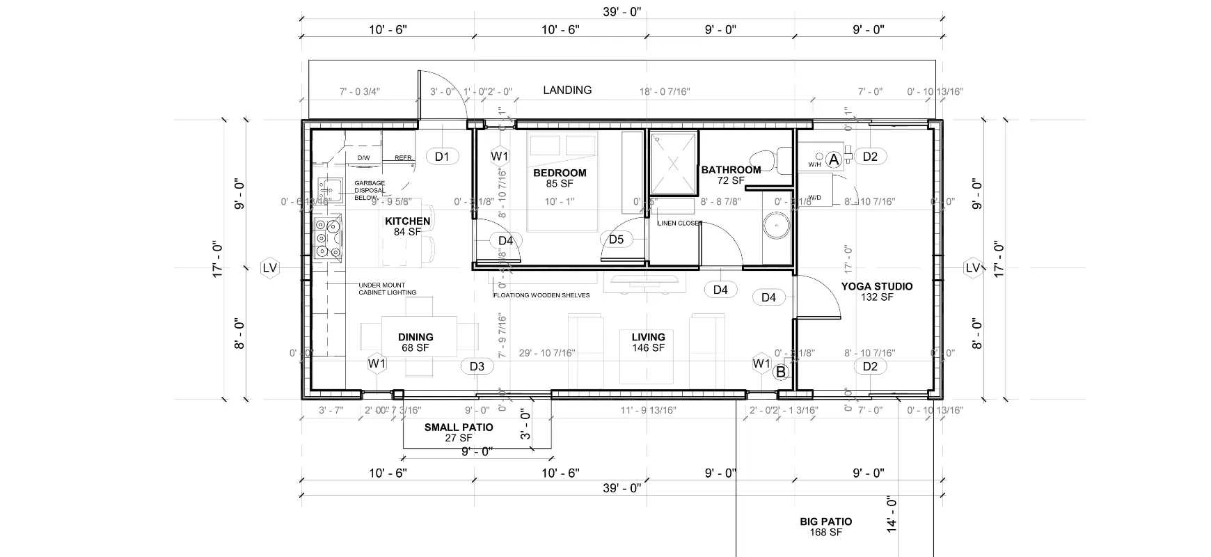
At Dallas ADU Pro, we specialize in transforming your property vision into a fully realized, code-compliant accessory dwelling unit (ADU). From concept sketches to permit-ready blueprints, our design team creates modern, functional layouts that fit your lifestyle and meet all Dallas zoning and building standards.

Each design is tailored to maximize space efficiency, natural light, and long-term livability — whether you’re building a rental unit, guest suite, or multi-generational home. Our process ensures every detail — from floor plan flow to sustainable material choices — is thoughtfully planned.

ADU floor plan and layout design process Dallas

Planning the Perfect ADU

Design Approach

We begin with an in-depth site assessment and property analysis to ensure your ADU design integrates seamlessly with your existing home and maximizes usable space.

Innovative Solutions

Every design balances creativity and compliance — blending smart layouts, energy-efficient systems, and Dallas-permitted building methods to achieve both style and sustainability.

Project Management

Our experienced project coordinators guide you through each step — handling city submissions, structural planning, and contractor alignment to ensure a smooth process from start to finish.

Using advanced 3D visualization tools, we help you explore your ADU before it’s built — from exterior finishes to interior layout options. We also handle all documentation for zoning and permit approvals, so your project stays compliant and on schedule.

3D ADU rendering and architectural visualization Dallas
ADU blueprint drafting and permit planning Dallas

Dallas ADU Pro delivers more than designs — we deliver livable solutions that enhance comfort, functionality, and property value. With expert planning, sustainable materials, and precise execution, your ADU will stand as a lasting investment in quality living.